




















at-ra22-003
一緒に、並ぶのではなく。
Zusammen, nicht nebeneinander
Kategorie
Raum
Ort
Kōtō, Tokyo, Japan
日本東京都江東区
(Nihon Tōkyō-to Kōtō-ku)
Typologie
Forschungsbau
Fläche
357m²
Beschreibung
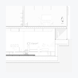
Dieses Projekt verwandelt ein ehemaliges nicht genutztes Untergeschoss in ein modernes Labor für autonome Robotik, wobei technische Präzision und japanische Designprinzipien eine zentrale Rolle spielen. Der Raum, ursprünglich geprägt durch eine überdimensionierte Technikdecke und fehlende natürliche Belichtung, wurde vollständig neu strukturiert. Dabei stand im Vordergrund, eine nachhaltige Nutzung der Ressourcen zu gewährleisten, indem die Abwärme der Industrieroboter zur Heizung im Winter genutzt wird – eine Lösung, die an das japanische Konzept der 勿体無い (Mottainai) erinnert.
Die Gestaltung des Labors ist minimalistisch gehalten, um den Fokus auf die Forschung zu lenken. Inspiriert vom Prinzip des 間 (Ma), wurde der Raum bewusst so gestaltet, dass Leere als gestaltendes Element genutzt wird, um eine ruhige und konzentrierte Arbeitsatmosphäre zu schaffen. Das statische Raster des Raumes wird dezent in der flächigen Beleuchtung der Decke aufgegriffen und durch eine Schattenfuge akzentuiert, die dem Raum Struktur und Tiefe verleiht. Das neu geschaffene Fensterband, das dem eines Obergadens nachempfunden ist, bringt erstmalig natürliches Licht in das Untergeschoss. Der neue Gang neben dem Fensterband ermöglicht Außenstehenden die Gelegenheit, von oben in das Labor zu blicken und so neue Perspektiven auf die Forschung zu gewinnen. Das sich daneben befindliche Wasserbecken dient der sicheren Entwässerung dieses Ganges und ist durch seine Tiefe gleichzeitig eine neu geschaffene Retentionsfläche.
frankfurt germany
impressum datenschutz
email, instagram
2026 © atelier taaas
info
atelier taaas, ein in Frankfurt ansässiges Atelier, gegründet von Anastasios Christias, überschreitet die konventionellen Grenzen zwischen Gedanken und Emotionen, Wissenschaft und Mystik und verbindet nahtlos Tradition mit moderner Innovation. Anastasios Expertise erstreckt sich über alle Bereiche der Architektur und des Design, einschließlich Austellungskuration, Installationen, Möbel, Objekte und Materialexperimente. Die architektonische Sprache von atelier taaas ist tief in verschiedenen japanischen und griechischen philosophischen Prinzipien verwurzelt. Die Objekte und Räume, die mit der Idee von „一期一会“ (Ichi-go ichi-e) geschaffen werden, feiern die Einzigartigkeit und vergängliche Schönheit jedes Moments.
atelier taaas, a Frankfurt based atelier founded by Anastasios Christias, transcends the conventional boundaries between thought and emotion, science and mysticism, seamlessly blending tradition with modern innovation. Anastasios‘ expertise spans all realms of architecture and design, including exhibition curation, installations, furniture, objects, and material experiments. The architectural language of Atelier Taaas is deeply rooted in various Japanese and Greek philosophical principles. The objects and spaces created with the idea of „一期一会“ (Ichi-go ichi-e) celebrate the uniqueness and ephemeral beauty of each moment.
Το atelier taaas, ένα ατελιέ με έδρα την Φρανκφούρτη, ιδρύθηκε από τον Αναστάσιο Χριστία και υπερβαίνει τα συμβατικά όρια μεταξύ σκέψης και συναισθήματος, επιστήμης και μυστικισμού, συνδυάζοντας άψογα την παράδοση με τη σύγχρονη καινοτομία. Η εξειδίκευση του Αναστάσιου καλύπτει όλους τους τομείς της αρχιτεκτονικής και του σχεδιασμού, συμπεριλαμβανομένης της επιμέλειας εκθέσεων, των εγκαταστάσεων, των επίπλων, των αντικειμένων και των πειραμάτων με υλικά. Η αρχιτεκτονική γλώσσα του atelier taaas είναι βαθιά ριζωμένη σε διάφορες ιαπωνικές και ελληνικές φιλοσοφικές αρχές. Τα αντικείμενα και οι χώροι που δημιουργούνται με την ιδέα του „一期一会“ (Ichi-go ichi-e) γιορτάζουν τη μοναδικότητα και την εφήμερη ομορφιά κάθε στιγμής.
Team
Anastasios Christias, MSc Architektur Wohnungsbau
Anastasios Christias studierte Architektur in Mainz. Während seines Studiums arbeitete er schon für diverse Architekturbüros in Deutschland, Schweiz und Griechenland. Seine Bachelor Thesis wurde für die Werkschau der Hochschule Mainz ausgezeichnet und für die Stipendienstiftung Rheinland Pfalz nominiert. Nach seinem Abschluss arbeitete er in unterschiedlichen Büros in Japan und Frankfurt. Seit 2024 ist er als Architekt in Frankfurt tätig und eingetragenes Mitglied der Architekten- und Stadtplanerkammer Hessen.
Publikationen/Ausstellungen/Medien
La Marzocco, Instagram-Publikation, 2024
Höchst Unflexibel! Flexibilität im Bürohochhaus, Selbstpublikation, 2023
Ideenwettbewerb KTM Factory Racing, wettbewerbe aktuell, 2023
Bachelor-Thesis, Zentrum Baukultur, 2023
Info-Tag 2022, Hochschule Mainz, 2022
Kontakt
Email 000@atelier-taaas.de
Instagram atelier_taaas